CABINET LLORET Agence
Télécharger la fiche
Nouveauté

Villa 4 pièce(s) 3 chambre(s) 119 m²

Tournefeuille (31170)
330 000 € Référence 4

A propos de ce bien

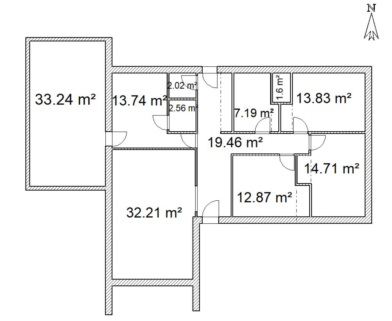
Maison plain pied T4 de 119 m2 avec garage sur terrain de 700 m2 comprenant une grande entrée distribuant un séjour avec cheminée, une cuisine spacieuse indépendante pouvant se réunir avec le séjour, trois chambres dont une avec un espace sanitaire, une salle de bain, un wc.

Terrasses Nord et Sud.

Garage attenant et communiquant avec la maison.

Jardin de 700 m2 clôturé sur 3 côtés.

Caractéristiques de ce bien

  • Surface 119 m²
  • terrain 700 m²
  • 3 chambre(s)
  • 1 salle(s) de bain
  • construit en 1978
  • cuisine séparée
  • Chauffage individuel : radiateur (gaz de ville)
  • 1 garage(s)
  • 1 niveau(x)

Diagnostics énergétiques

DPE
GES
DPE ANCIENNE VERSION

Informations financières

Prix de vente honoraires TTC inclus 330 000 €

Autour du bien

  • Commerces et santé
  • Loisirs
  • Ecoles
  • Transports
  • Pratique

Calcul des mensualités

* Champs obligatoires